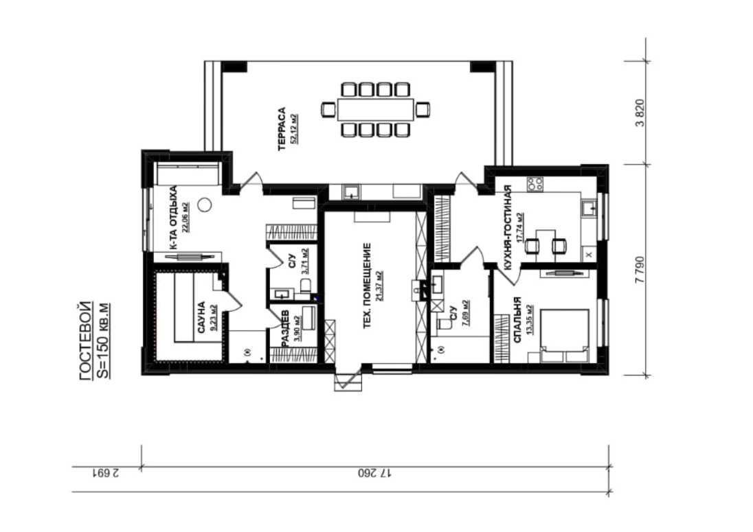
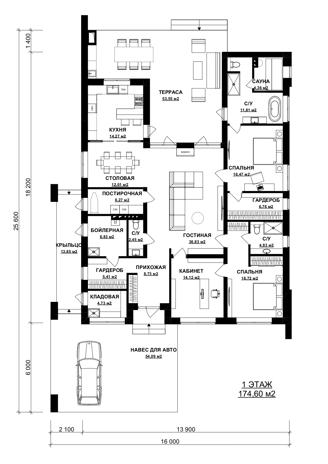
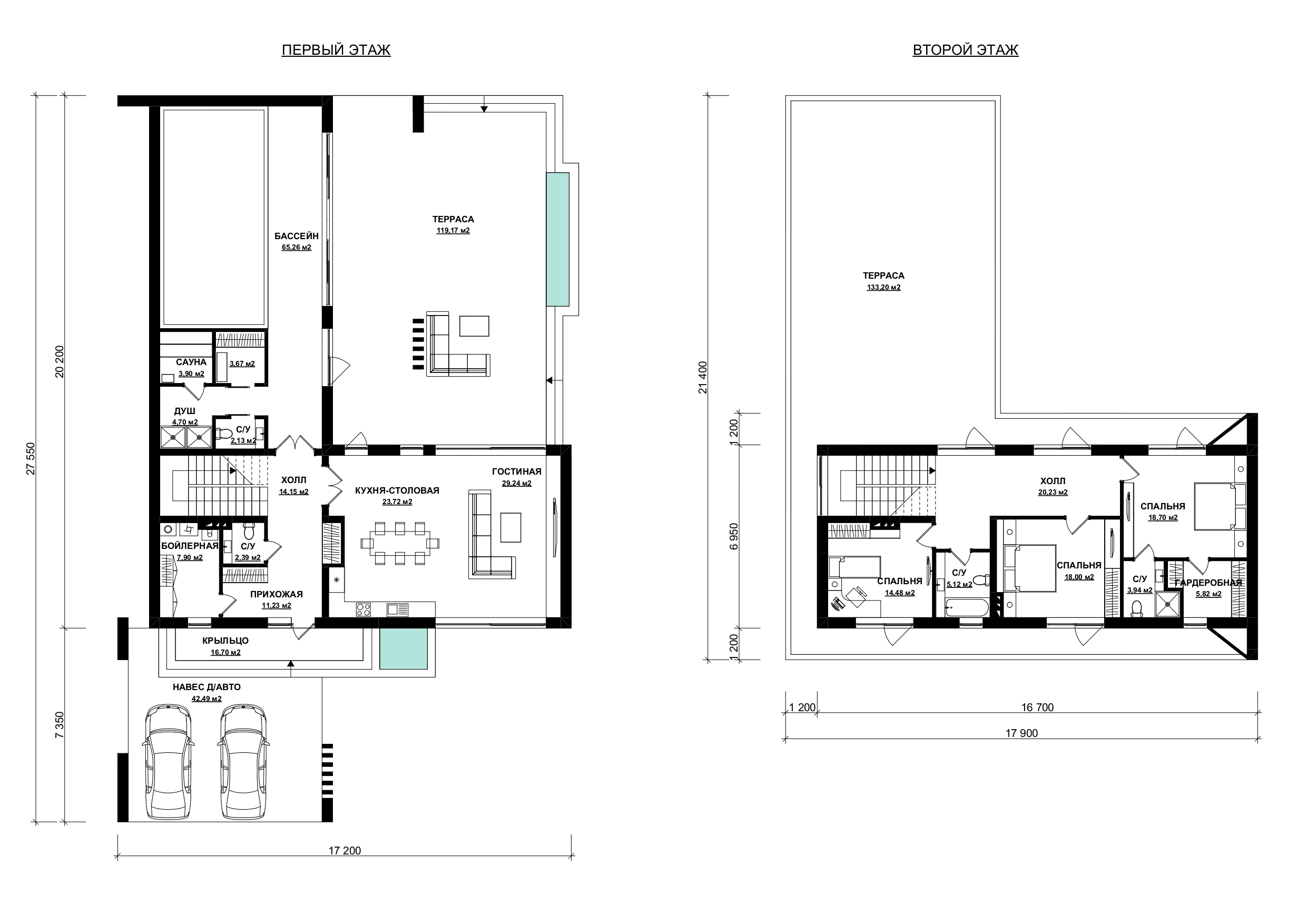
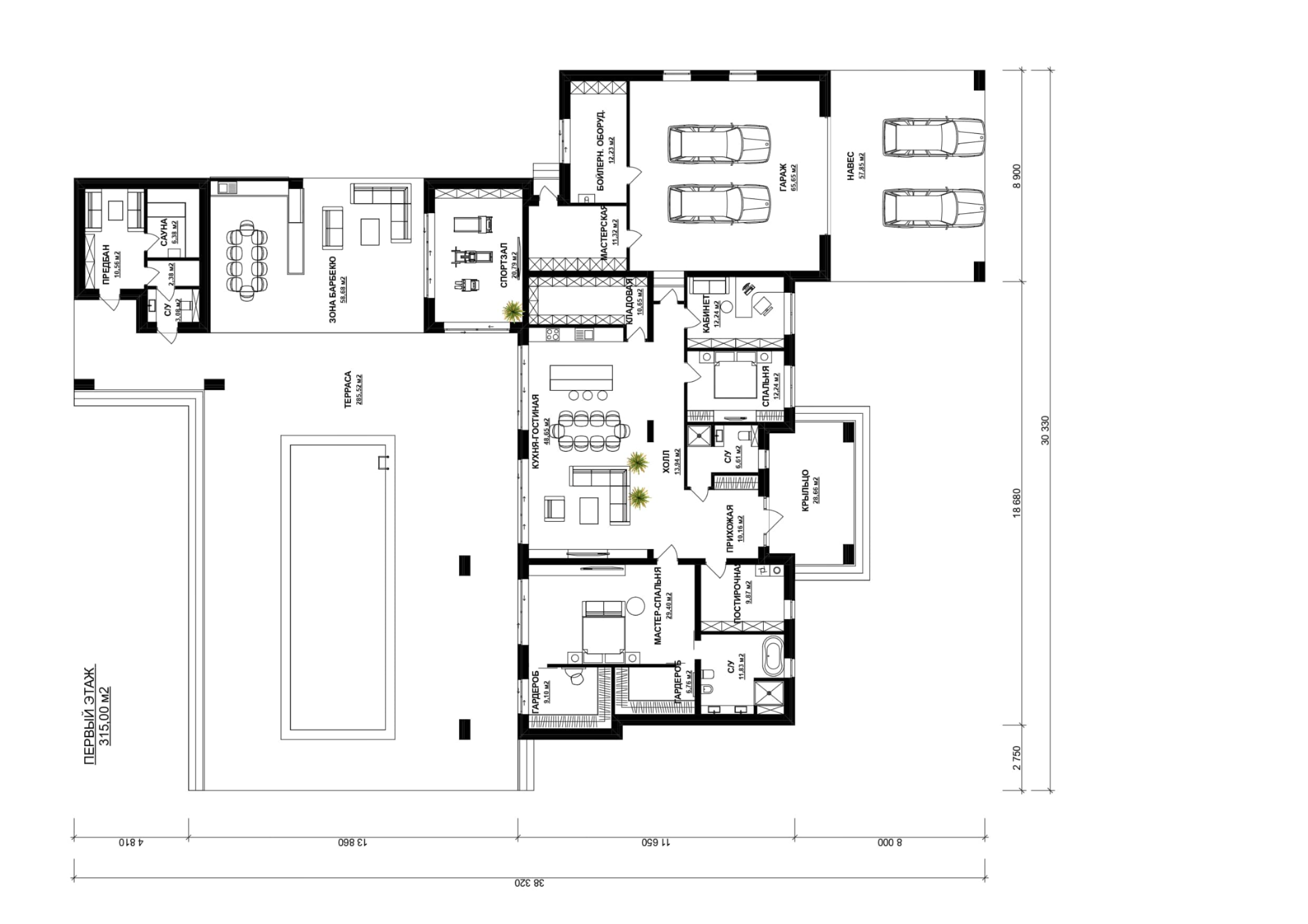
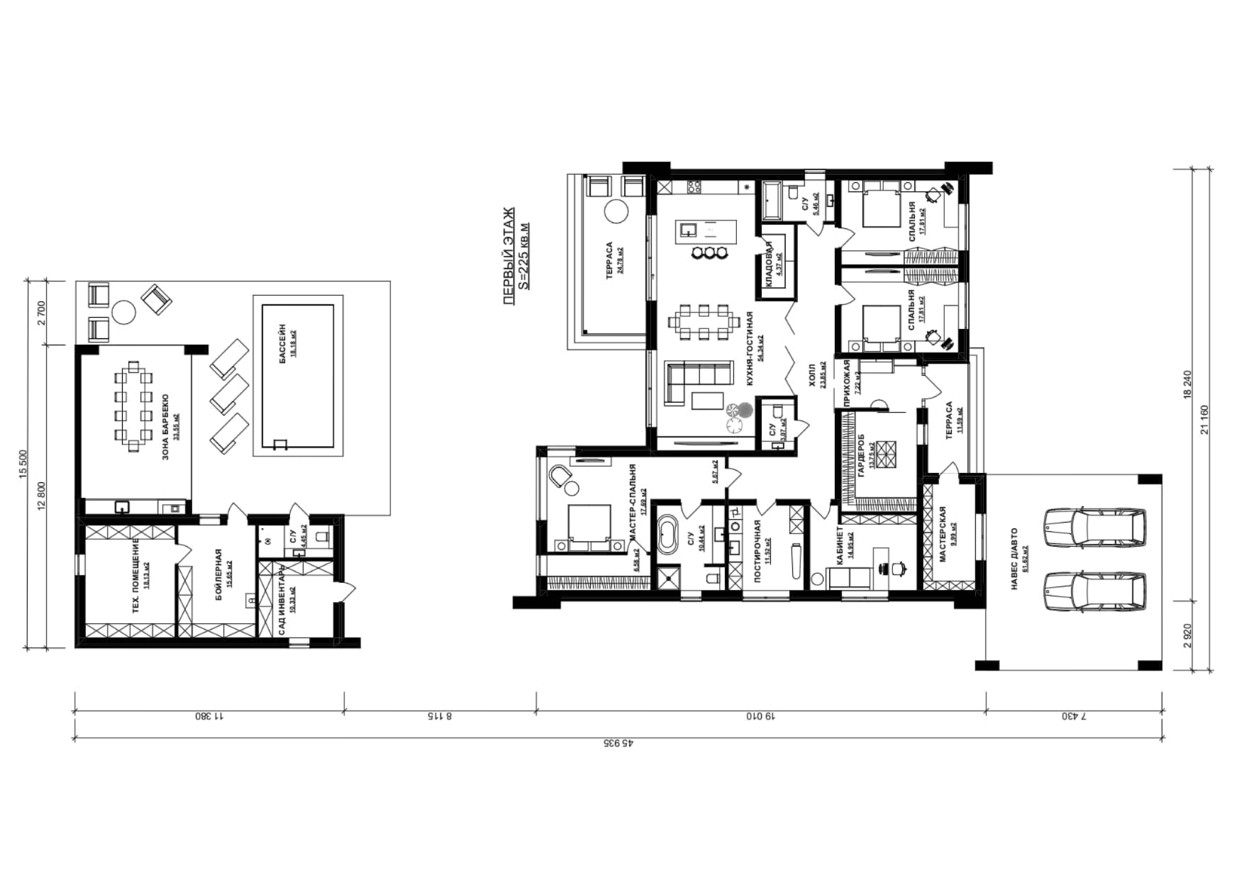
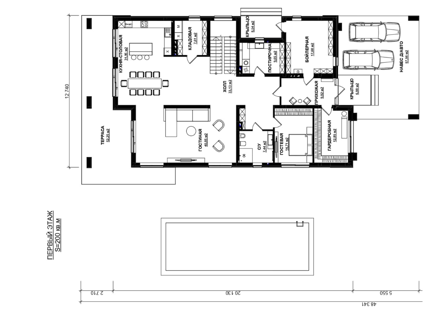
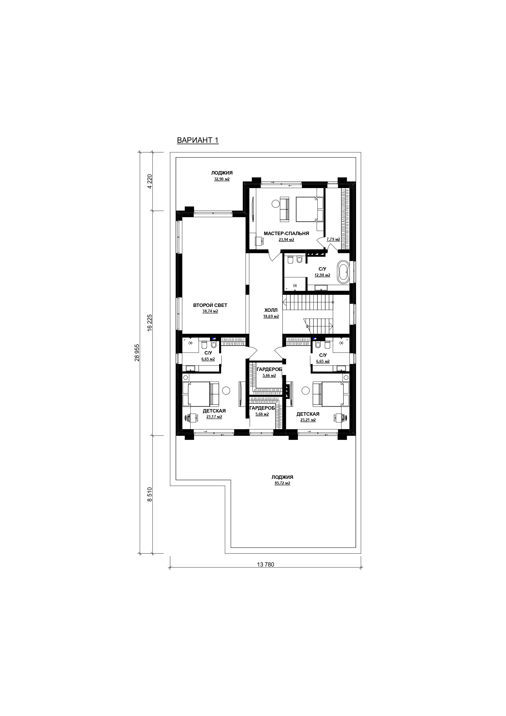
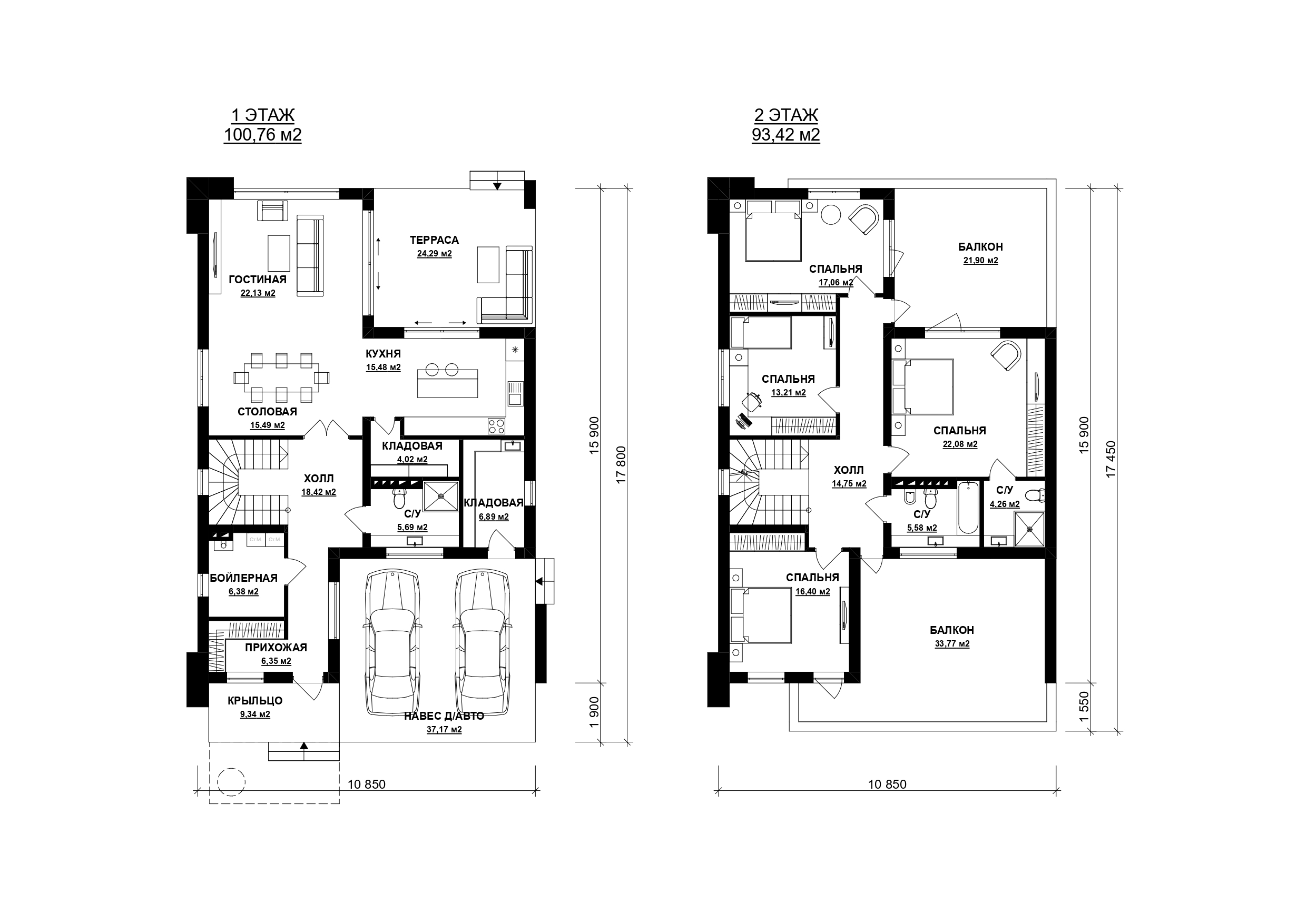
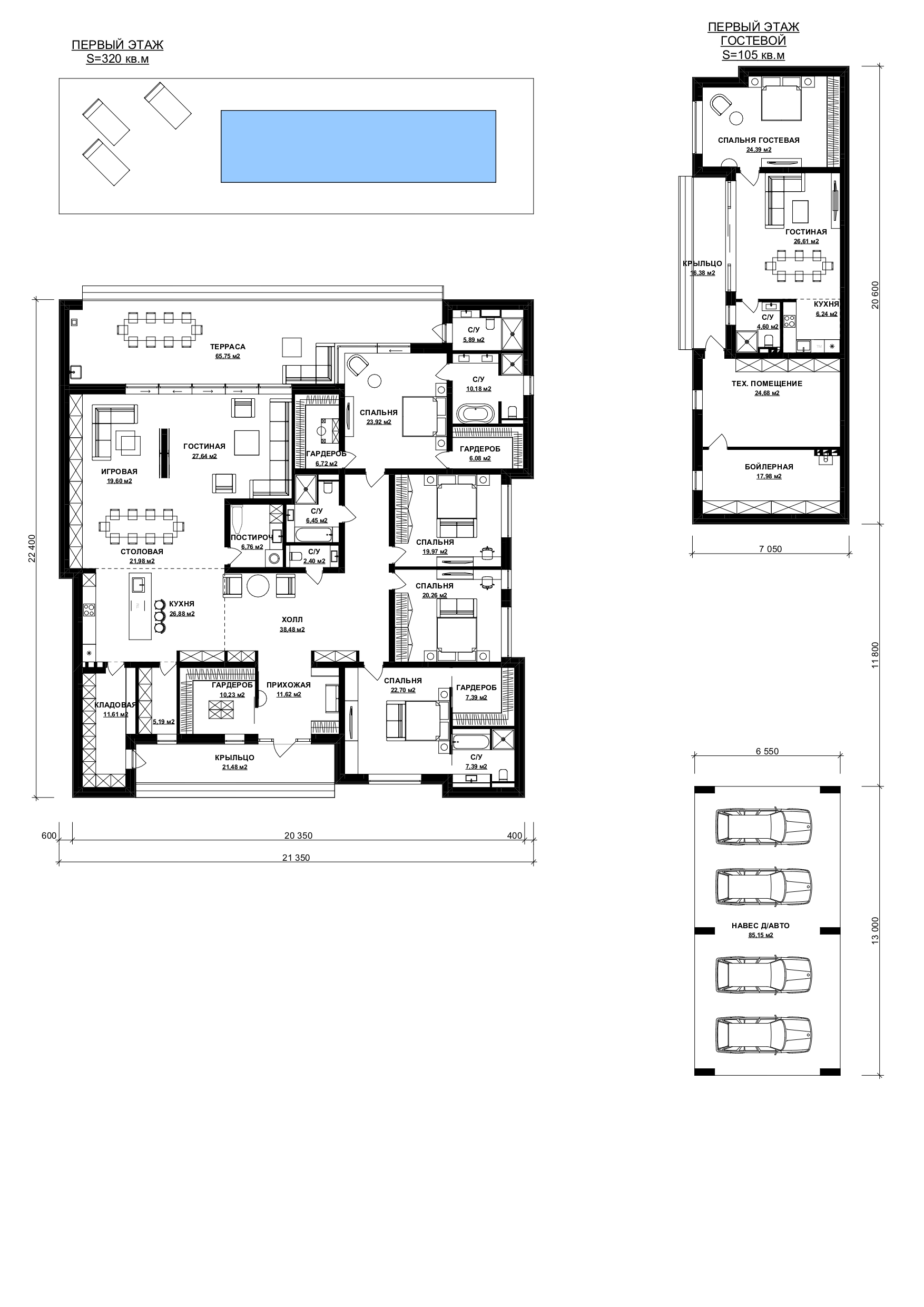
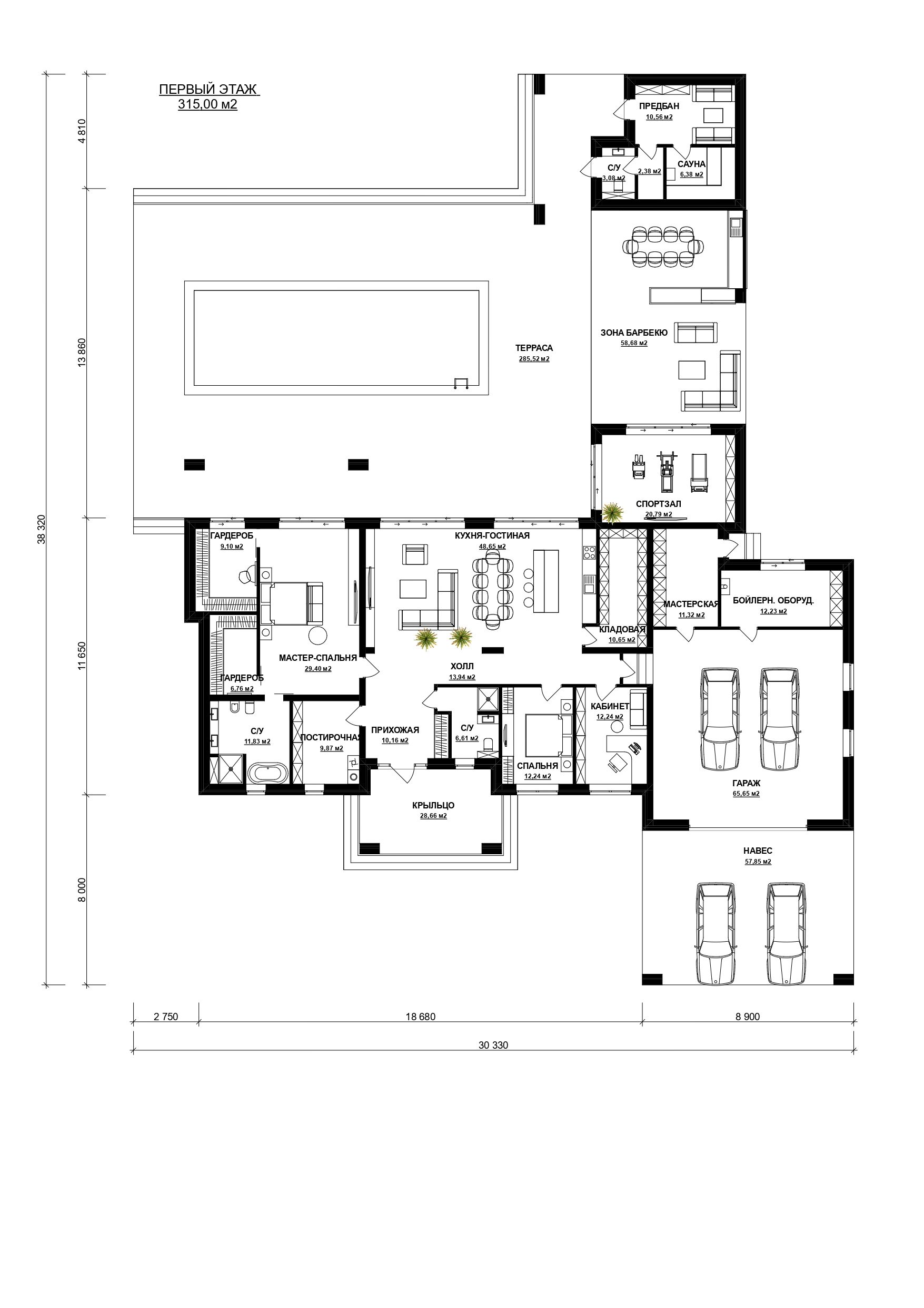
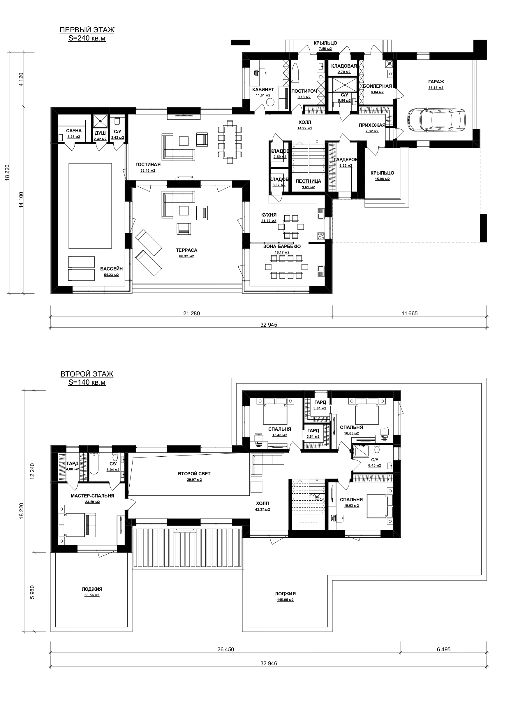
Описание
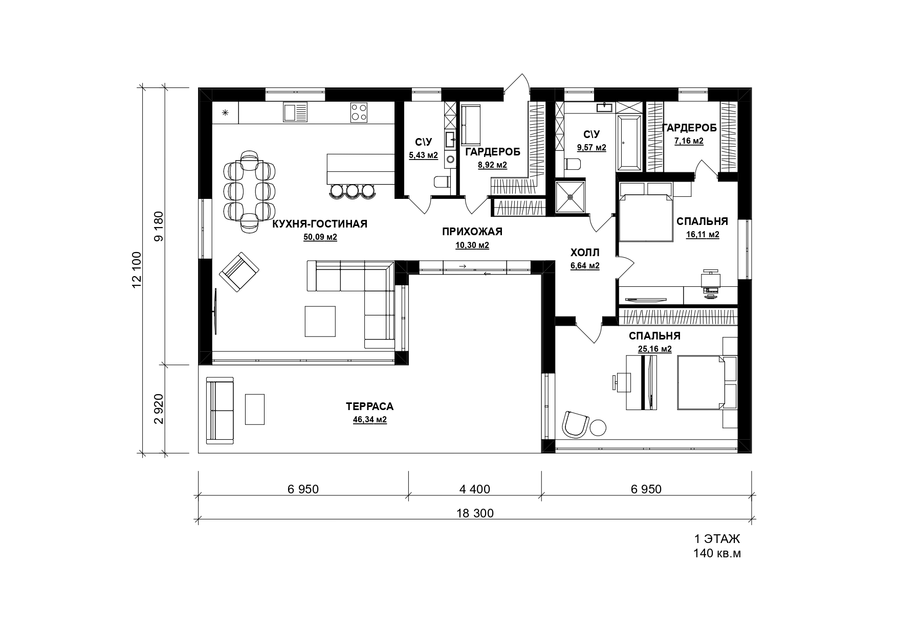
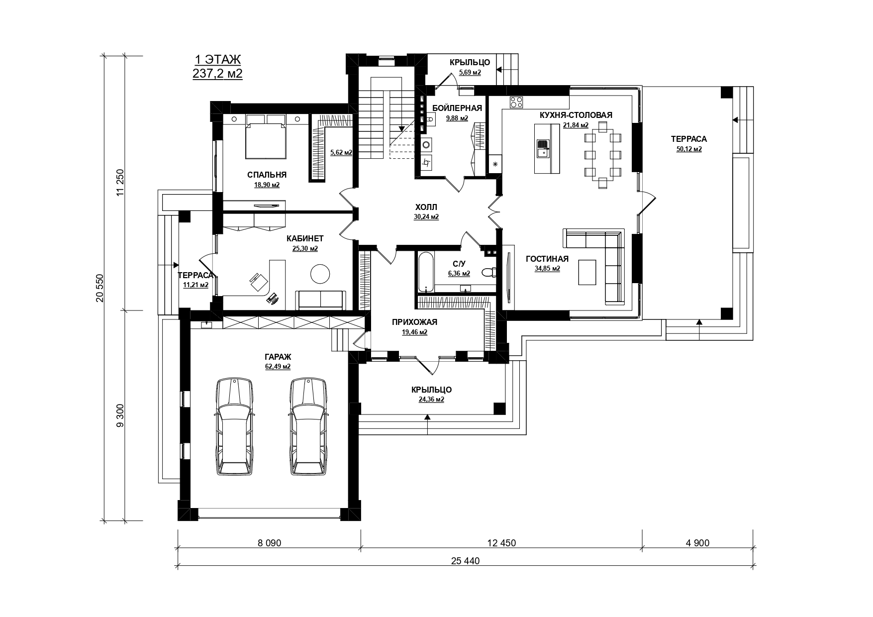
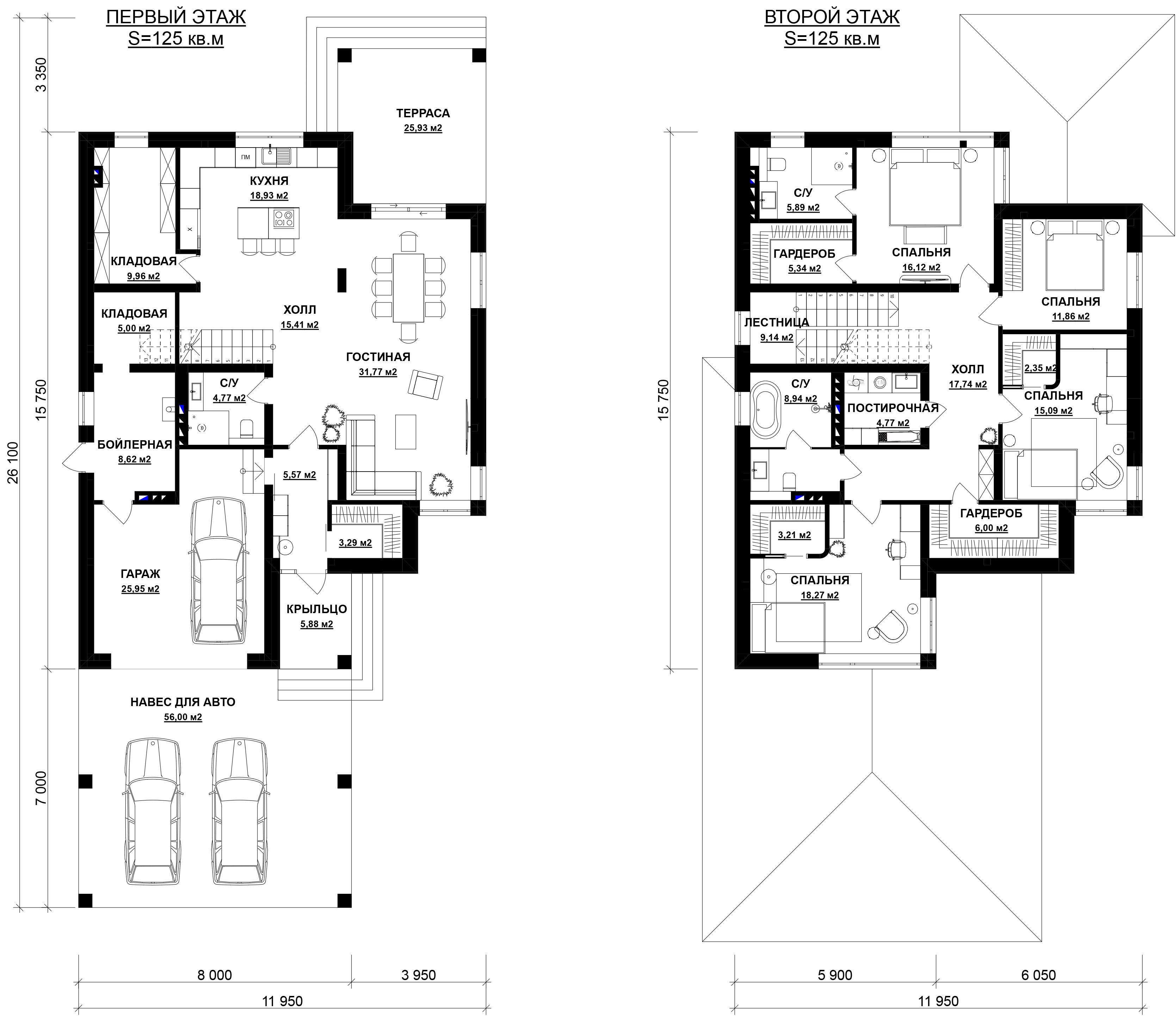
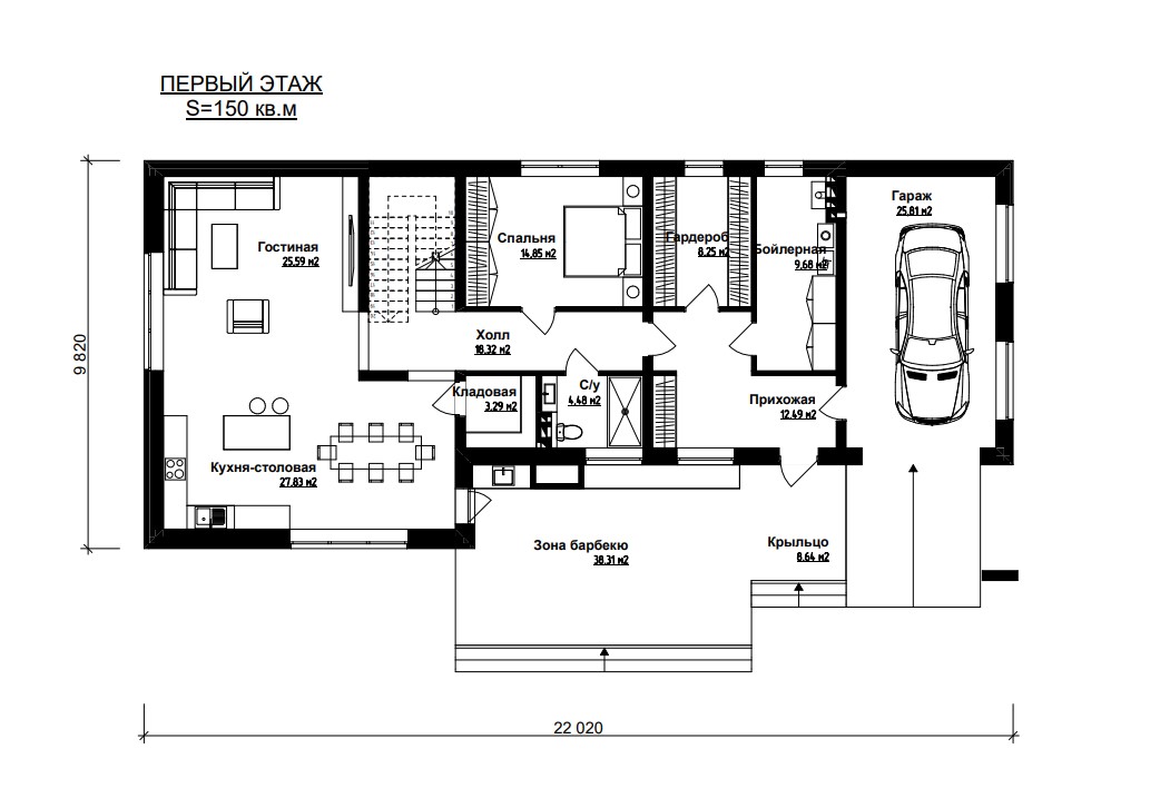
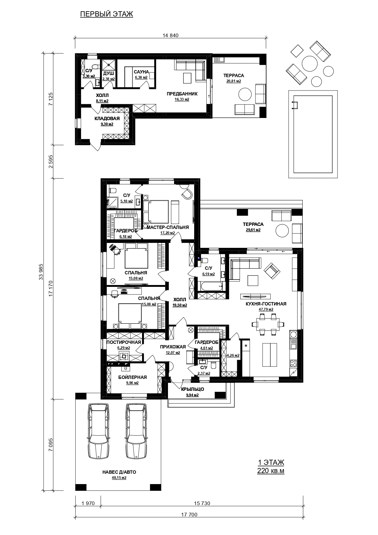
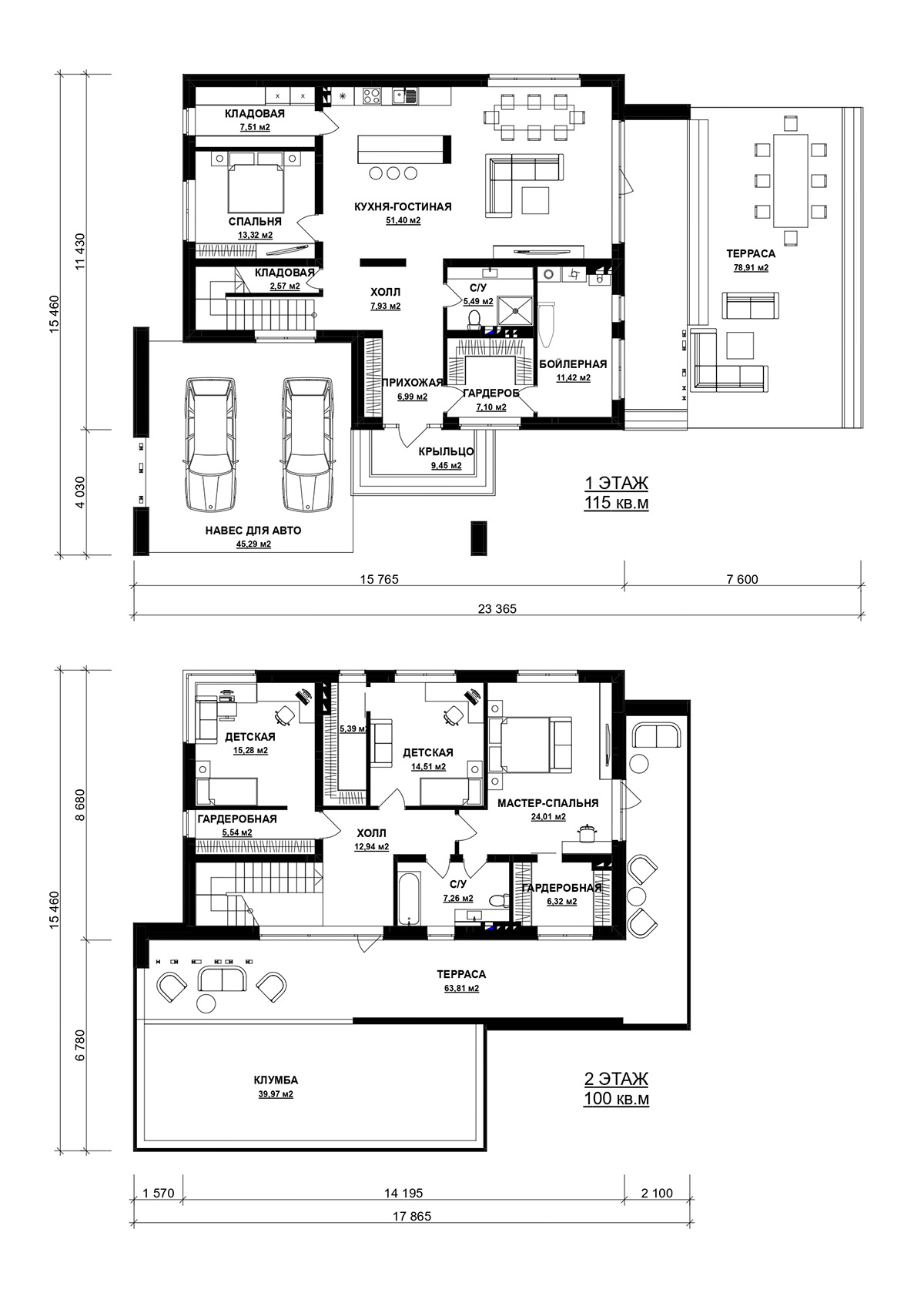
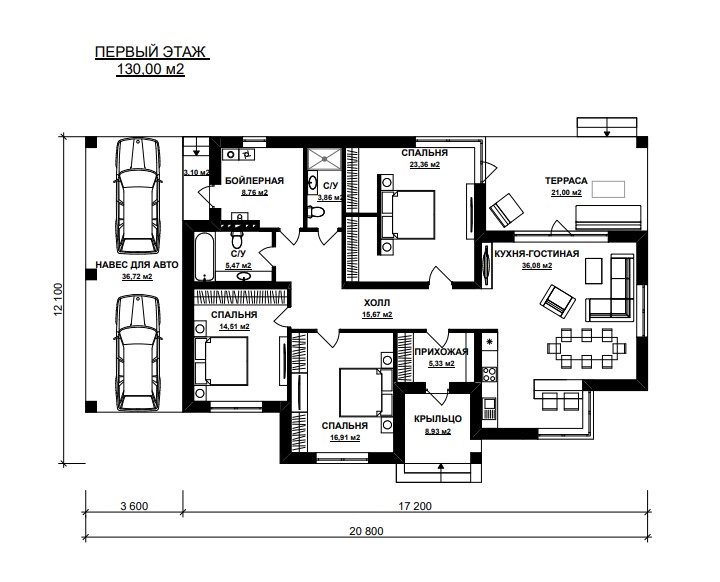
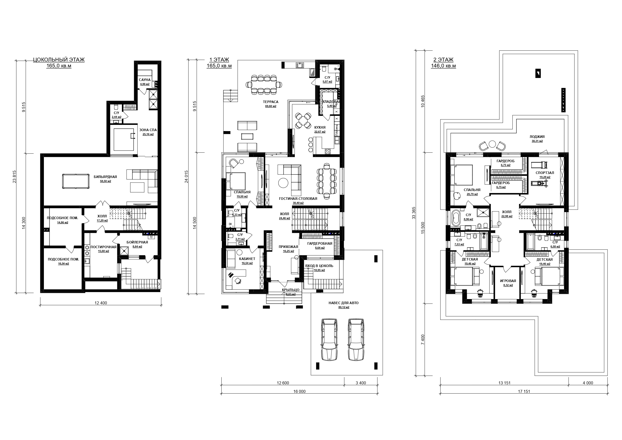
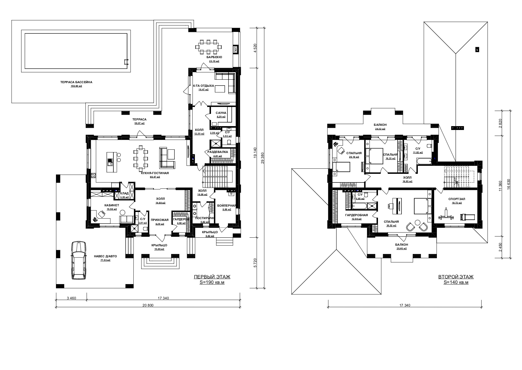
1 этаж: Прихожая, Гардеробная, Кухня-гостиная, Бойлерная, С/у, Холл, Кладовая - 2, Спальня, Терраса, Навес для авто
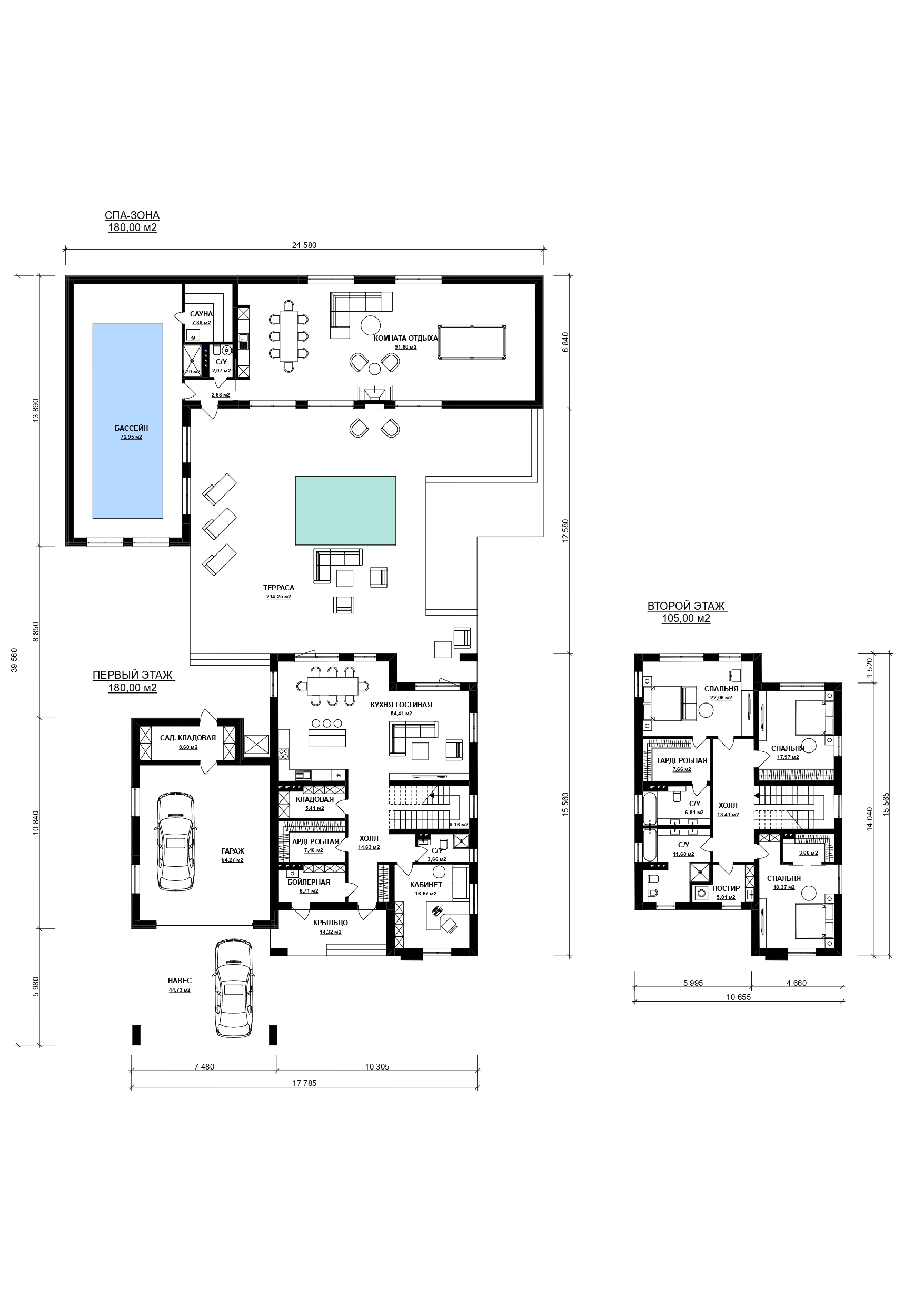
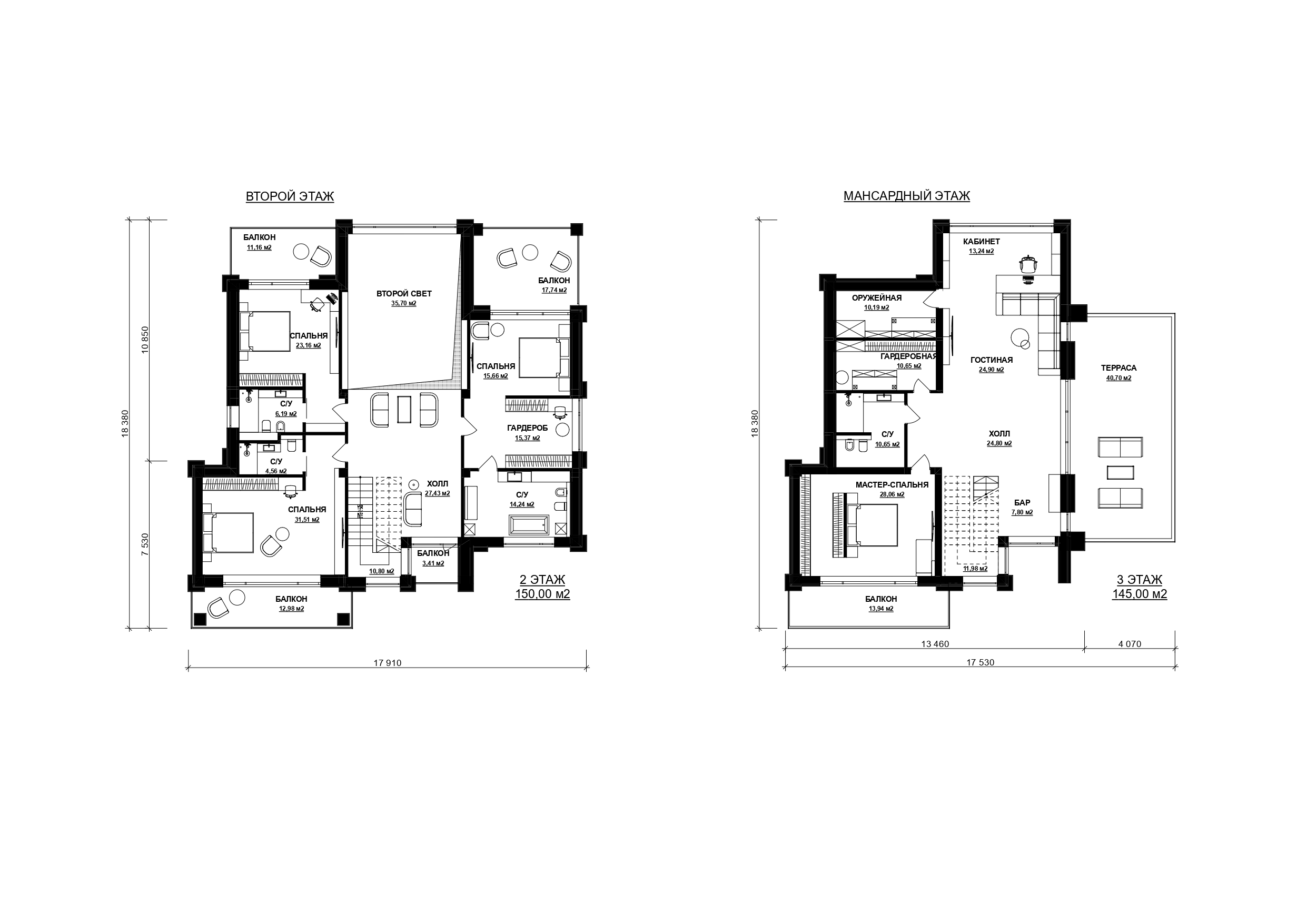
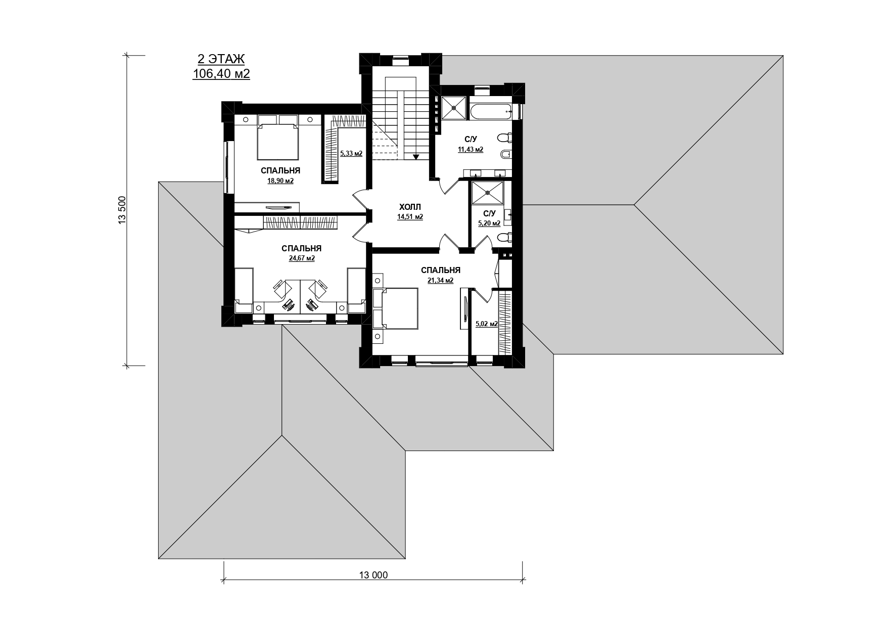
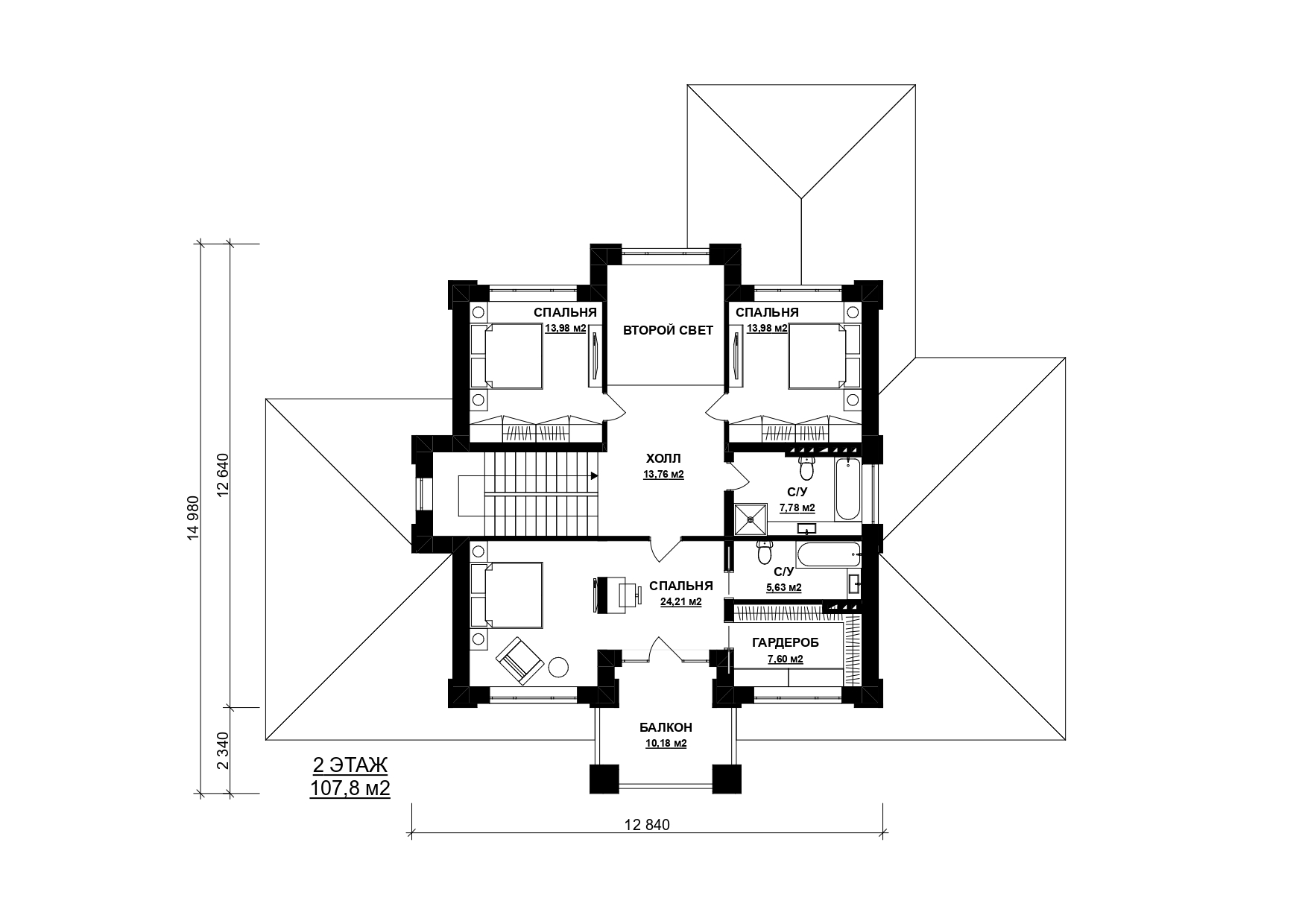
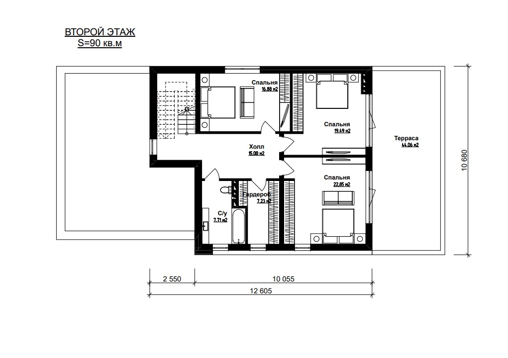
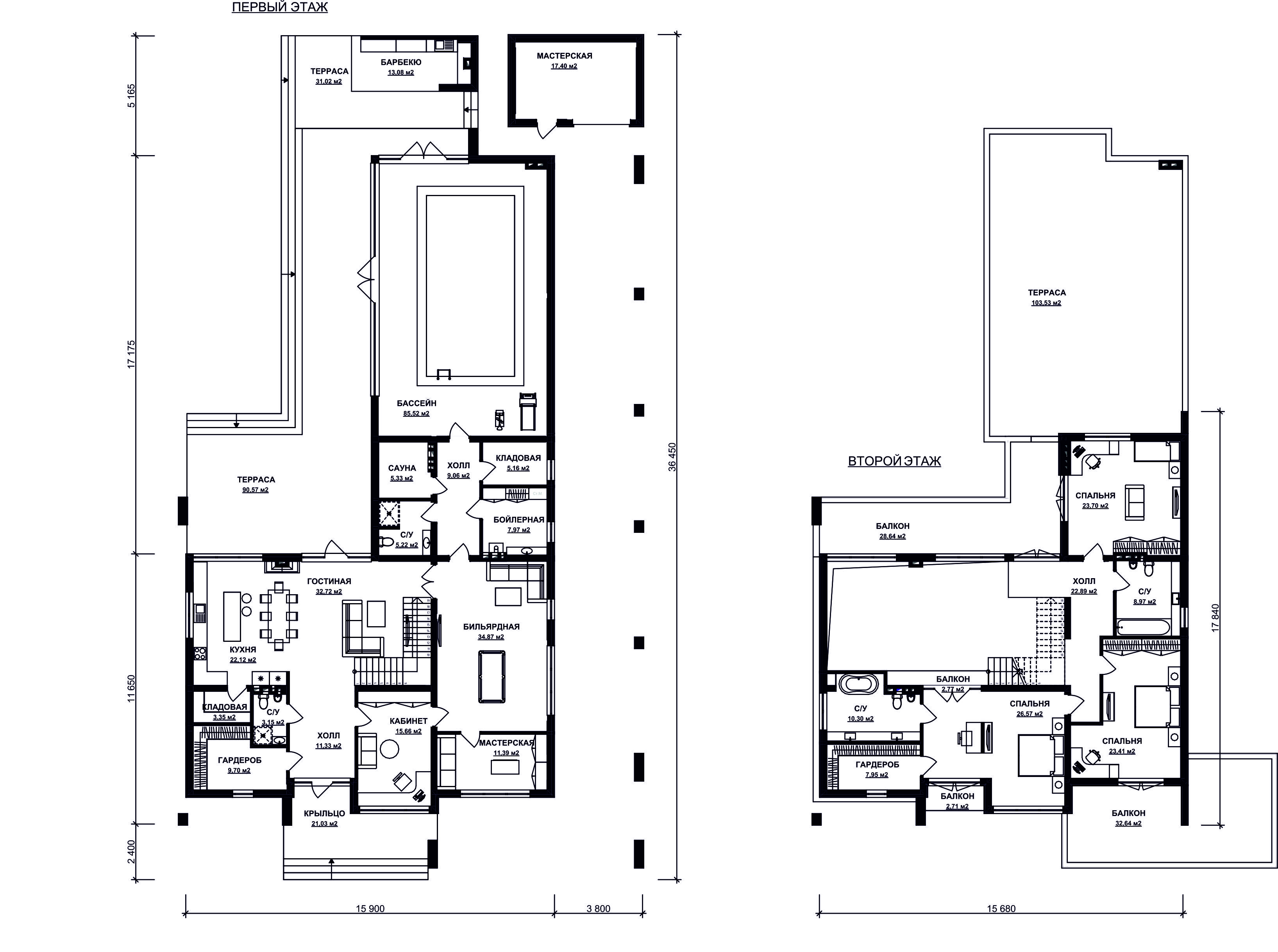
2 этаж: Холл, Спальня - 3, Санузел, Гардеробная - 3, Терраса
2 этаж: Холл, Спальня - 3, Санузел, Гардеробная - 3, Терраса